※ 产品介绍
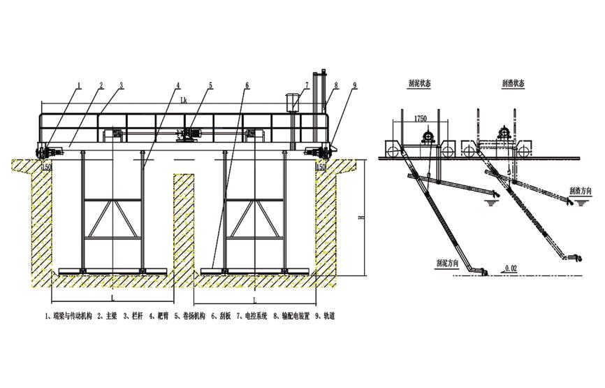
行车式刮泥机采用往复动作,将底泥刮至一端集泥坑外排,用于平流沉淀池池底污泥刮集,一端进水另一端出水,池底有一定坡度(约8/1000)。轨距一般在4-25m左右,当池宽较大时,可制作成多池合用结构,轨距4-8m一般为单驱动。
要发表评论,您必须先登录。
要发表评论,您必须先登录。